Meine Schwester, liebe Braut, Du bist ein verschlossener Garten, eine verschlossene Quelle, ein versiegelter Born
Hohelied Salomos 4:12
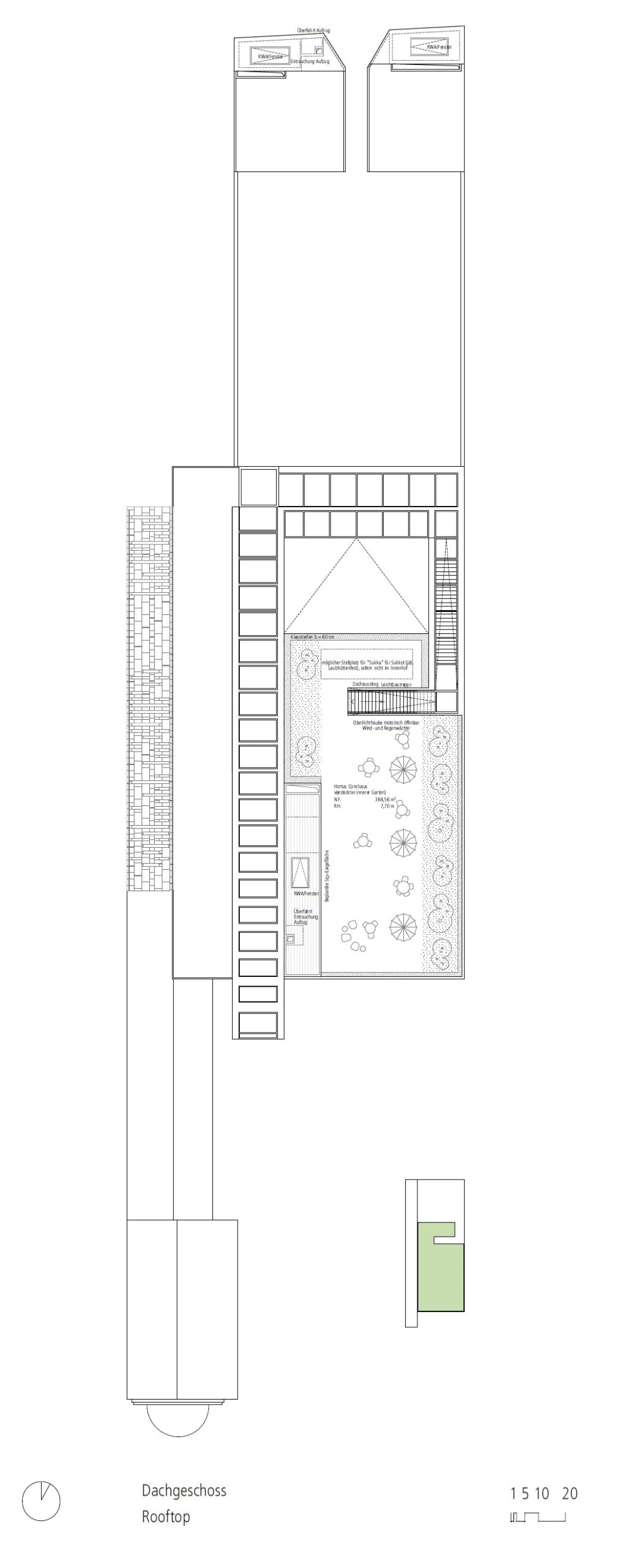
Es gibt Orte, die sich dem Blick entziehen – nicht weil sie nicht da wären, sondern weil sie verborgen sein wollen. Der Dachgarten dieses Gebäudes gehört zu ihnen. Von außen ist er nicht zu erkennen, denn eine zwei Meter hohe Mauer schließt ihn ein und bewahrt sein Geheimnis. Wer jedoch auf der Terrassenebene hinter dieser Mauer steht, kann gerade noch die umliegenden Dächer der Stadt erspähen. Ein merkwürdig distanzierter, fast metaphysischer Ausblick, der umso befremdlicher wirkt, als er sich ausgerechnet im pulsierenden Herzen Berlins eröffnet. Die damit einhergehende Verschlossenheit durch eine auf Augenhöhe geführte Umschließungsmauer unterstreicht die zeichenhafte Qualität der äußeren Gestalt – ein architektonischer Verweis auf den hortus conclusus, jenen „verschlossenen Garten“, der sowohl biblisch als auch typologisch als Rückzugsraum des Sakralen tradiert ist.
Wie in anderen religiösen Nutzungseinheiten des Komplexes wird auch hier der Blick bewusst gen Himmel gelenkt – als stiller Verweis auf eine Transzendenz, die sich architektonisch in der offenen Dachfläche niederschlägt. Der Dachgarten ist als Hybridraum konzipiert: kultisch nutzbar, etwa für das Laubhüttenfest Sukkot, zugleich jedoch profan erschließbar als Rückzugsort für die Mitarbeiter. Erreichbar ist er über eine in Leichtbauweise ausgeführte Dachtreppe, die mit ihrer schlichten Konstruktion nicht konkurriert, sondern sich diskret in die Gesamtfigur einfügt.


Architektur als Aufstieg – Die gestaffelte Erschließung als räumliche Erzählung
Das Gebäude entfaltet seine Erschließung als eine inszenierte Choreographie des Aufstiegs – ein symbolischer Weg vom Irdischen zum Himmlischen, von der Stadt in den heiligen Raum, von der profanen Welt in den Kosmos der Erinnerung und der Rituale. Der Weg beginnt tief unten: über einen Sockel, eine erste Stufenfolge, einen Gang, der sich wie eine vorbereitende Schwelle anfühlt. Von dort aus führt eine monumentale Treppenanlage – gleich einer „Himmelsleiter“ – hinauf zur Eingangsebene der Synagoge. Bereits hier beginnt der architektonische Pfad, sich von der Horizontalen zu lösen und in die Vertikale zu übergehen.
Die Synagoge selbst ruht, einer Erscheinung gleich, über den Ruinen des einstigen Allerheiligsten. Der Aufstieg führt jedoch weiter – über Emporen und Galerien, vorbei an den Zonen der liturgischen Versammlung, bis er sich schließlich in einem leichten, fast schwebenden Treppenlauf dem Dach nähert. Dort oben öffnet sich der Blick über die Dächer Berlins, in eine eigentümlich abstrahierte Ferne: „Im Himmel“, wie es heißt. Die Traufhöhe greift exakt die historische Kuppelhöhe über dem Almemor von 1916 auf und erzeugt ein architektonisches Gleichgewicht der Kräfte – ein flaches Dach über dem heiligen Ort, als Sinnbild des Ausgleichs zwischen Erhöhung und Versenkung.
Der Raum des Dachgartens ist umschlossen von einer Mauer, die ihn zugleich schützt und verbirgt – ein zeitgenössischer hortus conclusus. Die Decke senkt sich hier fast bis zum Boden hinab, berührt gleichsam den tiefsten Punkt, während sie den höchsten markiert. Inmitten dieser Stille: ein Rückzugsraum, ein Ort für kontemplative oder kultische Nutzungen, aber auch profane Pausen, gleichsam außerhalb der Zeit.
Zwischen Schacht und Schädel, Bad und Blut, Golgatha und Gebäudetechnik

Und noch eine Bewegung, verborgen im technischen Apparat des Hauses: Vom Dach aus wird Regenwasser gesammelt und über Schächte ins Untergeschoss geleitet, wo es die Mikwe speist. Im architektonischen Gefüge der Synagoge findet diese Analogie eine räumliche Entsprechung. Das Wasser, das durch technische Schächte geleitet wird, verbindet den Himmel mit der Erde – und trifft unten auf das Reinigungsbecken der Mikwe, einen Ort, der traditionell mit ritueller Reinigung und Rückkehr zum Ursprung assoziiert ist. Die eingesetzten Installationen umfassen ein Gefälleentwässerungssystem mit freiem Auslauf und kontrollierter Leitung in einen in der Tiefe liegenden Speicher, von wo aus das Wasser unter Berücksichtigung halachischer Vorgaben in das Tauchbecken übergeleitet wird. Hierzu werden Filterung und Durchlaufventile in einer Weise kombiniert, dass trotz baulicher Einbindung die Charakteristik des „lebendigen Wassers“ erhalten bleibt.

Diese vertikale Bewegung erinnert an ein anderes Bild: das Blut Christi, das – so die christliche Tradition – am Kreuz auf Golgatha vom Leib des Gekreuzigten herabfloss und auf den Schädel Adams traf, der am Fuße des Kreuzhügels begraben gewesen sein soll. Die Analogie ist auffällig: Auch hier fließt Flüssigkeit von oben nach unten, auch hier wird symbolisch eine Verbindung zwischen Tod und Ursprung, zwischen Erlösung und Geburt hergestellt. Die Gegenüberstellung dieser Systeme – christlich konnotierte Blutspur und halachische Wasserspur – eröffnet ein Spannungsfeld, das sich nicht nur in der symbolischen Bildhaftigkeit erschöpft, sondern sich auch im technischen und architektonischen Aufbau des Gebäudes niederschlägt. Denn gerade die Tatsache, dass die vertikale Durchleitung des Regenwassers mittels technischer Schächte mit kontrollierter Gefälleführung, Rückstausicherung und filigraner Ableitungsgeometrie realisiert wird, macht deutlich, dass die Metaphorik der Tiefe und des Ursprungs nicht über die Technik hinweggeht, sondern durch sie hindurch konkretisiert wird.


Dieses weniger theologisch zu deuten ist, als vielmehr typologisch-architektonisch: als stille Überlagerung zweier symbolischer Ordnungssysteme, die sich in der vertikalen Organisation des Bauwerks unweigerlich kreuzen. Doch dieser Übergang ist nicht ohne Ambivalenz – denn er führt über topographische und theologische Schwellen, deren Konnotationen weit über das Judentum hinausreichen. Dass der architektonische Aufstieg – sinnbildlich und baulich – schließlich in eine Bildwelt mündet, die mit dem Kreuz und dem Ort der Kreuzigung assoziiert ist, wirft Fragen auf: Ist hier eine christliche Überformung angedeutet? Oder handelt es sich vielmehr um eine gestalterische Provokation, die die unauflösbare Verschränkung jüdischer und christlicher Gedächtnisarchitekturen im europäischen Kontext reflektiert?
Die Synagoge am Fraenkelufer wird so – real wie fiktiv – zur Bühne einer erinnerungskulturellen Verflechtung, in der das Christentum nicht als Ziel, sondern als historisch nicht abzulösende Folie des Jüdischen erscheint. Die bauliche Linie, die vom Fundament zur Kuppelhöhe führt, schneidet durch die Stelle, an der einst das Allerheiligste lag, und endet – scheinbar folgerichtig – im Licht. Diese Achse überlagert sich mit dem Bild des Kreuzhügels Golgatha, wo – nach christlicher Überlieferung – das Blut Christi auf den Schädel Adams tropfte. Die Referenz ist daher weniger als Bekenntnis zu verstehen, sondern als Spiegelung einer vielfach gebrochenen Religionsgeschichte, die sich im Raum niederschreibt. Das gesamte Gebäude wird, nicht zuletzt durch seine felsenartige äußere Gestalt, selbst zu jenem Hügel, in dem das Fluidum von Erinnerung, Reinigung und Herkunft zirkuliert. In der räumlichen Metapher, die Wasser, Stein, Licht und Gedächtnis verschränkt, manifestiert sich die Ambivalenz eines Sakralbaus, der das Jüdische nicht ohne das Christliche denken kann – und der diesen Umstand nicht auflöst, sondern in gebaute Mehrdeutigkeit überführt.
Siehe auch:






